土地 羽曳野市河原城
所在地
      羽曳野市河原城
    
                  1,080万円
              
      
                                            19.86坪
                                    
    ◇期間限定 土地売り開始!!
◇建築条件ございません
◇お好きな工務店・ハウスメーカーで建築いただけます
月々の
支払例
      支払例
万円
          年
          %
          円
        ※紀陽銀行/借入金1,080万円、返済期間35年、金利0.395%(変動)の場合
※審査により金利は変わる可能性があります。
物件概要
- 交通
 - 
  
近鉄南大阪線 藤井寺駅 バス9分乗車 バス停学園前5丁目 まで 徒歩9分
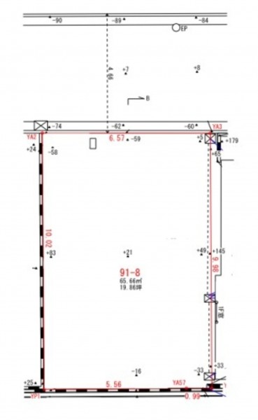
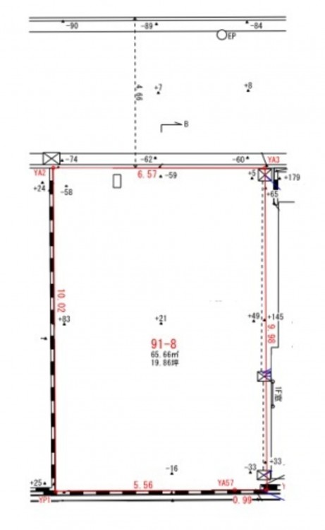
 - 土地面積
 - 実測 65.66㎡ (19.86坪)
 - 建ぺい率
 - 60%
 - 容積率
 - 200%
 - 土地権利
 - セットバック
 - 無し
 - 小学校区
 - 丹比 (300m)
 - 中学校区
 - 河原城 (300m)
 - 私道負担
 - なし
 - 建築条件
 - なし
 - 地目
 - 宅地
 - 現況
 - 更地
 - 引渡時期
 - 相談
 - 上水道
 - 公共
 - 下水道
 - 公共下水
 - ガス
 - 都市ガス
 - 都市計画
 - 市街化区域
 - 用途地域
 - 1種中高層
 - 設備・条件
 - 備考
 - 取引態様
 - 仲介
 
            
                  


