マンション ロイヤル八尾
所在地
八尾市東久宝寺1丁目
1,380万円
55.00m²
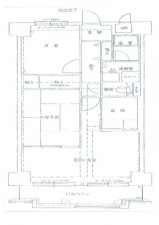
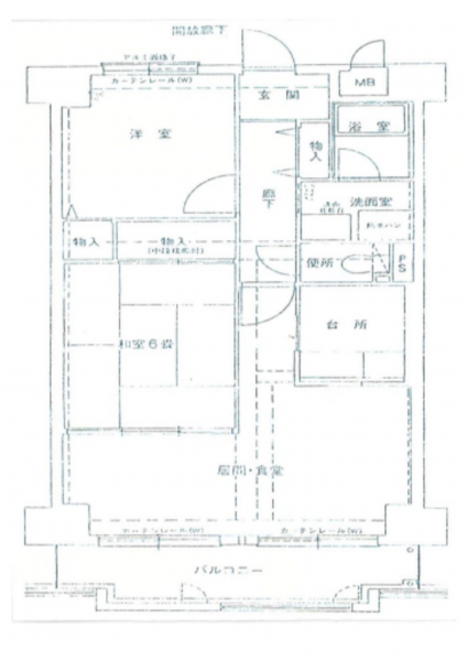
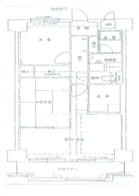
2LDK
☆2沿線利用可能で便利♪
☆8階建て6階部分 2LDK☆
☆オーナーチェンジ物件です!!
・月額賃料 70000円(共益込)
月々の
支払例
支払例
万円
年
%
円
※紀陽銀行/借入金1,380万円、返済期間35年、金利0.395%(変動)の場合
※審査により金利は変わる可能性があります。
物件概要
- 交通
-
近鉄大阪線 近鉄八尾駅 まで 徒歩13分
近鉄大阪線 久宝寺口駅 まで 徒歩14分
関西線 八尾駅 まで 徒歩16分
- 専有面積
- 壁芯 55.00㎡
- バルコニー
-
7.28㎡
(東側)
- 所在階/階数
- 6階/8階
- 築年数
-
1989年
(平成元)
8月
築36年 - 建ぺい率
- 容積率
- 土地権利
- 所有権
- 構造および階数
- RC(鉄筋コンクリート) 造 地下5階 地上8階建
- 総戸数
- 69戸
- 小学校区
- 久宝寺 (450m)
- 中学校区
- 久宝寺 (500m)
- 地目
- 現況
- 賃貸中
- 引渡時期
- 即時
- 駐車場
- 駐車場月額
- 管理形態
- 全部委託
- 管理会社
- グローバルコミュニティ株式会社
- 管理費
- 8,910円
- 修繕積立費
- 5,500円
- 上水道
- 公共
- 下水道
- 公共下水
- ガス
- 都市ガス
- 都市計画
- 用途地域
- 1種住居
- 設備・条件
- 備考
- 取引態様
- 仲介



