新築一戸建て 松原市天美北2丁目1号棟
所在地
松原市天美北2丁目1号棟
3,380万円
28.91坪
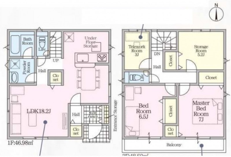
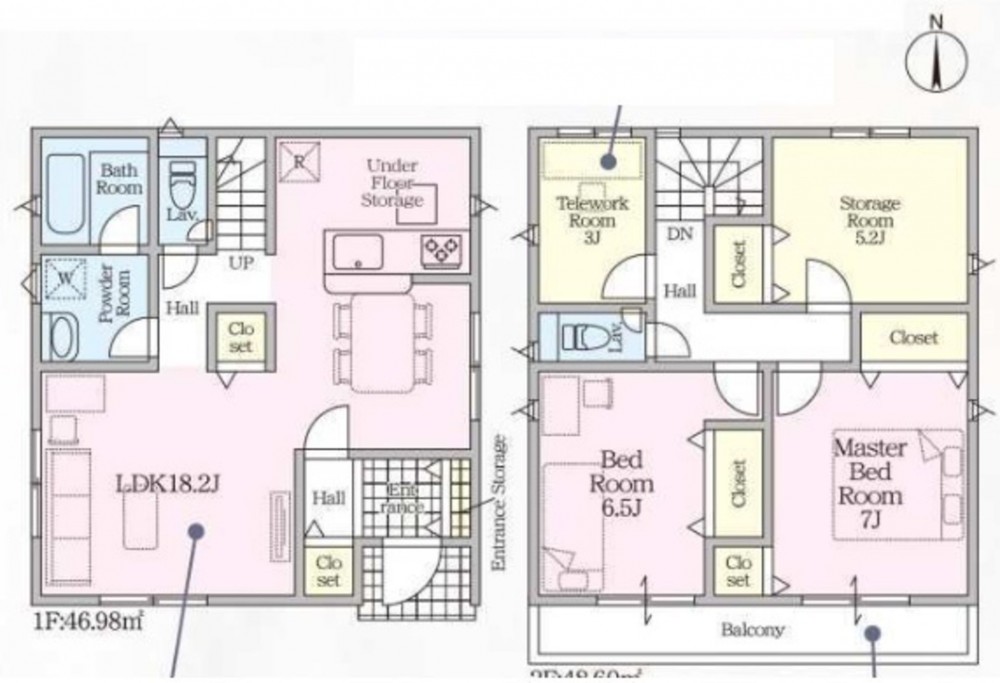
3LDK
・土地面積約31.2坪!南向きにつき陽当たり良好☆
・木造2階建て使い勝手のよい3LDK☆
・在宅ワークに最適なテレワークルームございます♪
・省エネ性能レベル3☆
月々の
支払例
支払例
万円
年
%
円
※紀陽銀行/借入金3,380万円、返済期間35年、金利0.395%(変動)の場合
※審査により金利は変わる可能性があります。
物件概要
- 交通
-
近鉄南大阪線 河内天美駅 まで 徒歩22分
- 接道状況
- 南側 公道4.8m 間口約6.9m
- 土地面積
- 実測 103.44㎡ (31.29坪)
- 建物面積
- 95.58㎡ (28.91坪)
- 築年数
- 建ぺい率
- 60%
- 容積率
- 192%
- 土地権利
- 所有権
- 構造および階数
- 木造 地上2階建
- 小学校区
- 天美北
- 中学校区
- 松原第二
- 私道負担
- 地目
- 宅地
- 現況
- 空家
- 引渡時期
- 即時
- 駐車場
- 有
- 上水道
- 公共
- 下水道
- 公共下水
- ガス
- 都市ガス
- 都市計画
- 市街化区域
- 用途地域
- 2種住居
- 建築確認番号
- 第R07SHC114626号
- 設備・条件
- システムキッチン、カウンターキッチン、シャンプードレッサー、洗浄便座、浴室乾燥機、複層ガラス、モニタ付インターホン、床下収納、トイレ2箇所
- 備考
- 準防火
- 取引態様
- 仲介



