中古一戸建て 羽曳野市南恵我之荘5丁目
所在地
羽曳野市南恵我之荘5丁目
13,800万円
104.81坪
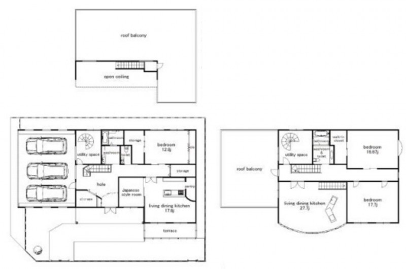
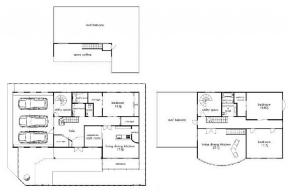
4LDK
4LDK+LDK+2フリースペース
閑静な住宅街の南西角住戸
敷地面積約112.97坪!
月々の
支払例
支払例
万円
年
%
円
※紀陽銀行/借入金13,800万円、返済期間35年、金利0.395%(変動)の場合
※審査により金利は変わる可能性があります。
物件概要
- 交通
-
近鉄南大阪線 恵我ノ荘駅 まで 徒歩11分
- 接道状況
-
南側 公道6m
西側 公道6m - 土地面積
- 公簿 373.46㎡ (112.97坪)
- 建物面積
- 346.50㎡ (104.81坪)
- 築年数
-
2013年
(平成25)
11月
築12年 - 建ぺい率
- 60%
- 容積率
- 150%
- 土地権利
- 所有権
- 構造および階数
- 鉄骨造 地上2階建
- 小学校区
- 恵我之荘
- 中学校区
- 高鷲南
- 私道負担
- なし
- 地目
- 宅地
- 現況
- 空家
- 引渡時期
- 相談
- 駐車場
- 有
- 上水道
- 公共
- 下水道
- 公共下水
- ガス
- 都市ガス
- 都市計画
- 市街化区域
- 用途地域
- 1種低層
- 設備・条件
- カウンターキッチン、ウォークインクローゼット、駐車場2台分、駐車場3台分、トイレ2箇所、太陽光発電システム
- 備考
- 取引態様
- 仲介



