新築一戸建て 藤井寺市小山7丁目全1棟1期1号棟
所在地
藤井寺市小山7丁目全1棟1期1号棟
3,490万円
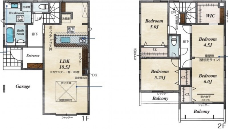
34.02坪
3LDK
・「耐震等級3」、「断熱等性能等級5」、「一次エネルギー消費量等級6」取得予定
地震に強く、冷暖房のエネルギー消費が少ない住まいです
・木造2階建ファミリー様向け3LDK☆
月々の
支払例
支払例
万円
年
%
円
※紀陽銀行/借入金3,490万円、返済期間35年、金利0.395%(変動)の場合
※審査により金利は変わる可能性があります。
物件概要
- 交通
-
近鉄南大阪線 藤井寺駅 まで 徒歩18分
- 土地面積
- 96.04㎡ (29.05坪)
- 建物面積
- 112.48㎡ (34.02坪)
- 築年数
- 2026年 (令和8) 2月
- 建ぺい率
- 60%
- 容積率
- 200%
- 土地権利
- 所有権
- 構造および階数
- 木造 地上2階建
- 小学校区
- 藤井寺北 (1200m)
- 中学校区
- 第三 (1100m)
- 私道負担
- 地目
- 宅地
- 現況
- 未完成
- 引渡時期
- 期日指定 令和 8年 3月 上旬
- 駐車場
- 有
- 上水道
- 公共
- 下水道
- 浄化槽個別
- ガス
- 都市ガス
- 都市計画
- 市街化区域
- 用途地域
- 1種住居
- 建築確認番号
- 第R07SHC118694号
- 設備・条件
- 食器洗浄乾燥機、シャンプードレッサー、洗浄便座、追い焚き、複層ガラス、ウォークインクローゼット、モニタ付インターホン、床下収納
- 備考
- 準防火地域、第2種高度地区
- 取引態様
- 仲介



