新築一戸建て 藤井寺市沢田1丁目
所在地
藤井寺市沢田1丁目
2,780万円
29.44坪
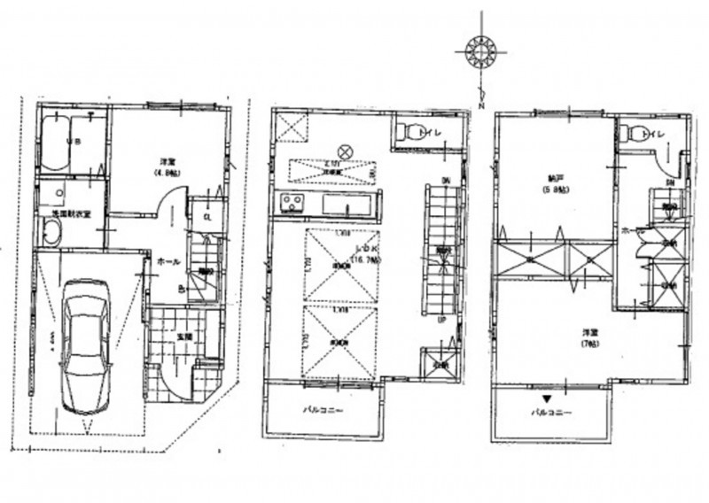
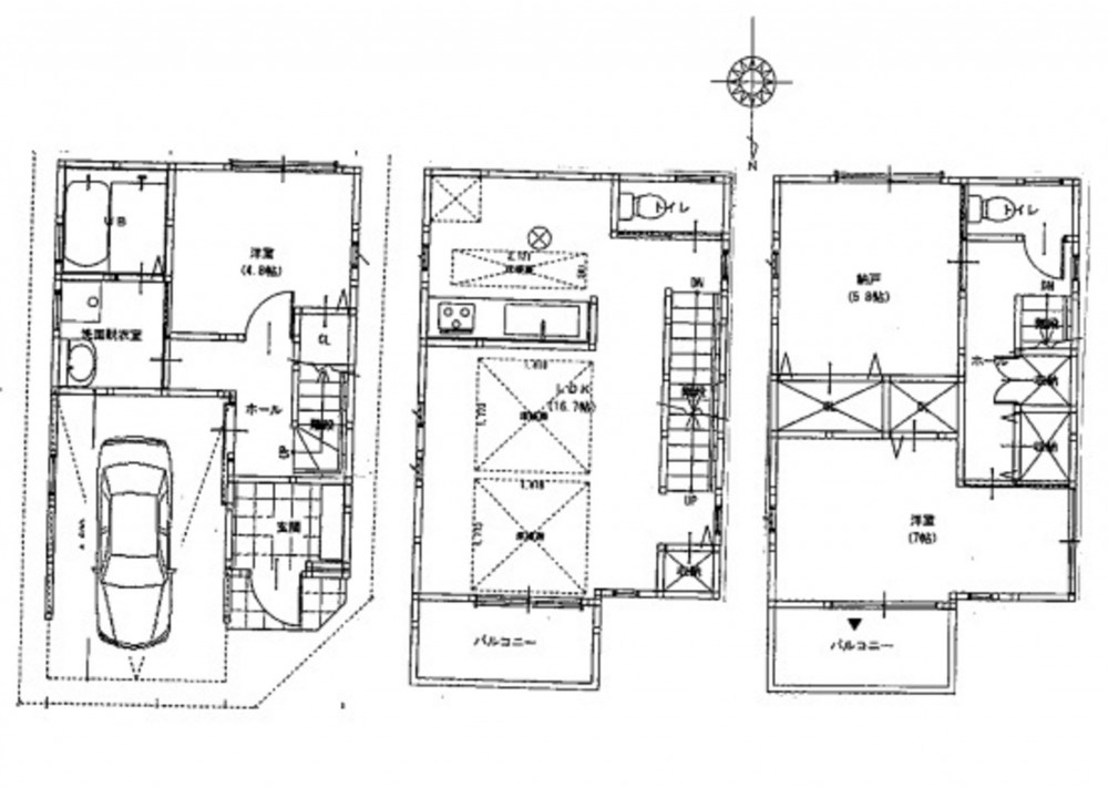
3LDK
新築3階建て戸建て
床暖房LDKに3箇所ございます
使い勝手のよい3LDK
月々の
支払例
支払例
万円
年
%
円
※紀陽銀行/借入金2,780万円、返済期間35年、金利0.395%(変動)の場合
※審査により金利は変わる可能性があります。
物件概要
- 交通
-
近鉄南大阪線 藤井寺駅 まで 徒歩15分
- 土地面積
- 50.29㎡ (15.21坪)
- 建物面積
- 97.35㎡ (29.44坪)
- 築年数
- 2026年 (令和8)
- 建ぺい率
- 60%
- 容積率
- 200%
- 土地権利
- 所有権
- 構造および階数
- 木造 地上2階建
- 小学校区
- 藤井寺 (1000m)
- 中学校区
- 第三 (450m)
- 私道負担
- 地目
- 宅地
- 現況
- 未完成
- 引渡時期
- 相談
- 駐車場
- 上水道
- 公共
- 下水道
- 公共下水
- ガス
- 都市ガス
- 都市計画
- 市街化区域
- 用途地域
- 1種住居
- 設備・条件
- システムキッチン、カウンターキッチン、床暖房、トイレ2箇所
- 備考
- 準防火
- 取引態様
- 仲介



