新築一戸建て 羽曳野市南恵我之荘2丁目
所在地
羽曳野市南恵我之荘2丁目
2,998万円
29.49坪
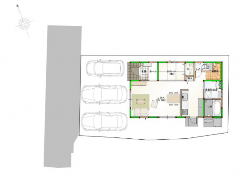
3LDK
●オール電化住宅
●ZEH仕様
●太陽光発電システム6.16kW付き
●耐震等級3相当
●駐車スペース3台分
月々の
支払例
支払例
万円
年
%
円
※紀陽銀行/借入金2,998万円、返済期間35年、金利0.395%(変動)の場合
※審査により金利は変わる可能性があります。
物件概要
- 交通
-
近鉄南大阪線 恵我ノ荘駅 まで 徒歩7分
- 接道状況
- 西側 私道3.5m 間口約7.9m
- 土地面積
- 公簿 121.43㎡ (36.73坪)
- 建物面積
- 97.49㎡ (29.49坪)
- 築年数
- 2026年 (令和8) 2月
- 建ぺい率
- 60%
- 容積率
- 200%
- 土地権利
- 所有権
- 構造および階数
- 木造 地上2階建
- 小学校区
- 恵我之荘 (600m)
- 中学校区
- 高鷲南 (1000m)
- 私道負担
- あり (15.86㎡)
- 地目
- 宅地
- 現況
- 未完成
- 引渡時期
- 相談
- 駐車場
- 上水道
- 公共
- 下水道
- 公共下水
- ガス
- 都市計画
- 市街化区域
- 用途地域
- 2種中高層
- 建築確認番号
- J25-20175号
- 設備・条件
- システムキッチン、カウンターキッチン、食器洗浄乾燥機、IHクッキングヒーター、オール電化、シャンプードレッサー、洗浄便座、浴室乾燥機、複層ガラス、ウォークインクローゼット、モニタ付インターホン、駐車場2台分、駐車場3台分、床下収納、トイレ2箇所
- 備考
-
※お客様の屋根を当社にお貸しいただき太陽光発電システムを設置する「屋根貸しシステム」をご利用頂く事が 価格の条件です。
※太陽光発電システムは発電開始して10年経過後に無償で譲渡します。
※太陽光発電付きでの購入も可能で、その場合の価格は+100万円になります。
太陽光売電収入はお客様が得る事になります。
- 取引態様
- 仲介



