新築一戸建て 八尾市八尾木3丁目C号地
所在地
八尾市八尾木3丁目C号地
4,130万円
29.03坪
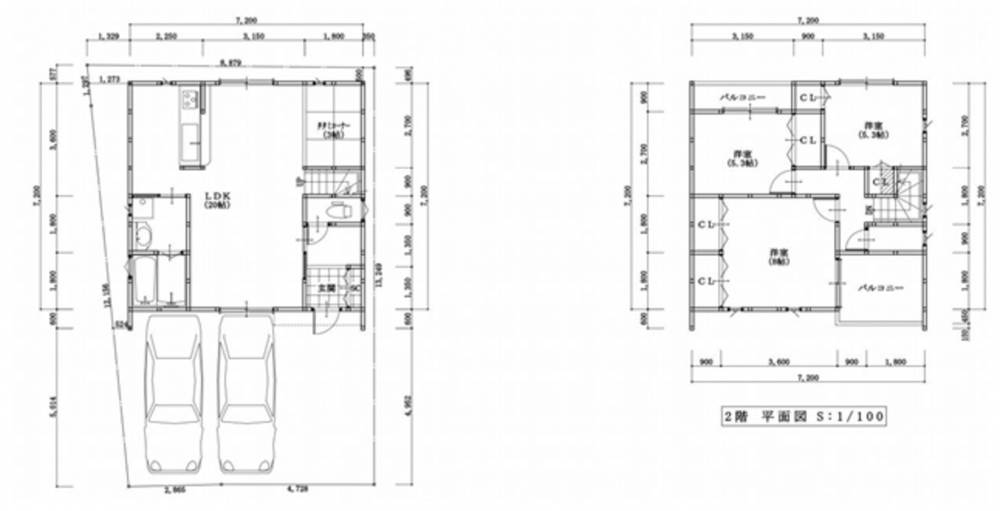
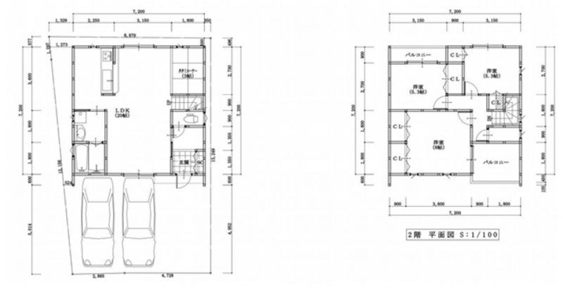
3LDK
2沿線利用可能で便利♪
土地面積約33坪!!
近隣お買い物施設充実で便利☆
月々の
支払例
支払例
万円
年
%
円
※紀陽銀行/借入金4,130万円、返済期間35年、金利0.395%(変動)の場合
※審査により金利は変わる可能性があります。
物件概要
- 交通
-
関西線 志紀駅 まで 徒歩15分
近鉄大阪線 恩智駅 まで 徒歩23分
- 接道状況
- 北側 公道4.7m 間口約7.5m
- 土地面積
- 公簿 109.54㎡ (33.13坪)
- 建物面積
- 95.99㎡ (29.03坪)
- 築年数
- 2026年 (令和8)
- 建ぺい率
- 60%
- 容積率
- 200%
- 土地権利
- 所有権
- 構造および階数
- 木造 地上2階建
- 小学校区
- 曙川 (789m)
- 中学校区
- 曙川南 (1035m)
- 私道負担
- なし
- 地目
- 宅地
- 現況
- 未完成
- 引渡時期
- 相談
- 駐車場
- 有
- 上水道
- 公共
- 下水道
- 公共下水
- ガス
- 都市ガス
- 都市計画
- 市街化区域
- 用途地域
- 1種住居
- 設備・条件
- システムキッチン、食器洗浄乾燥機、浴室乾燥機、駐車場2台分
- 備考
- 取引態様
- 仲介



