収益物件/住宅付店舗 柏原市国分本町4丁目
所在地
柏原市国分本町4丁目
11,800万円
2沿線利用可能で便利♪
土地面積約90坪!!
5~6台駐車可☆
エレベーター付☆
月々の
支払例
支払例
万円
年
%
円
※紀陽銀行/借入金11,800万円、返済期間35年、金利0.395%(変動)の場合
※審査により金利は変わる可能性があります。
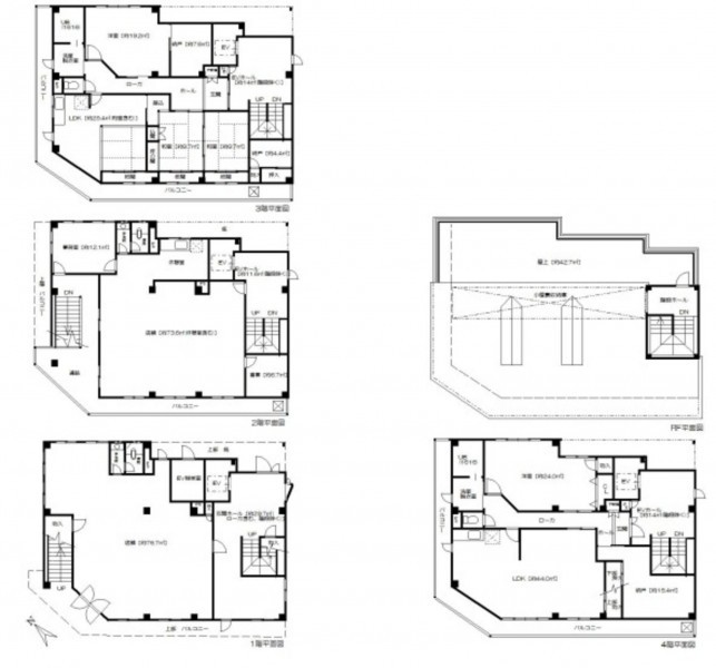
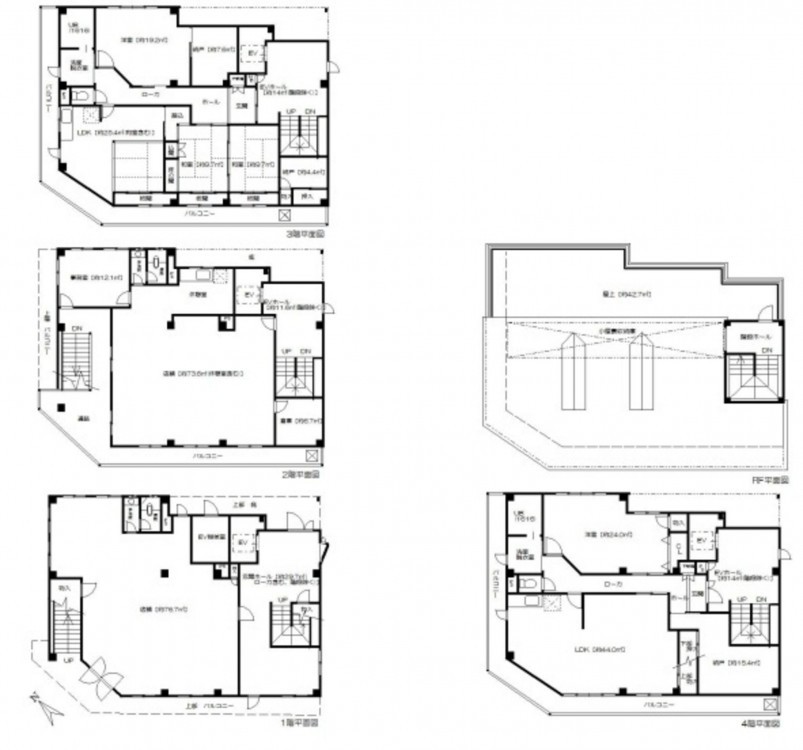
物件概要
- 交通
-
近鉄大阪線 河内国分駅 まで 徒歩7分
関西線 高井田駅 まで 徒歩13分
- 土地面積
- 297.55㎡ (90.00坪)
- 建物面積
- 518.42㎡ (156.82坪)
- 所在階/階数
- 築年数
-
1996年
(平成8)
6月
築29年 - 建ぺい率
- 60%
- 容積率
- 200%
- 土地権利
- 所有権
- 構造および階数
- 鉄骨造 地上4階建
- 総戸数
- 小学校区
- 国分
- 中学校区
- 国分
- 私道負担
- 地目
- 宅地
- 現況
- 空家
- 引渡時期
- 相談
- 駐車場
- 有
- 上水道
- 下水道
- ガス
- 都市計画
- 市街化区域
- 用途地域
- 2種住居
- 設備・条件
- エレベーター
- 備考
- 取引態様
- 仲介



