新築一戸建て 八尾市相生町1丁目
所在地
八尾市相生町1丁目
3,980万円
30.87坪
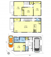
4LDK
・関西線「八尾」駅まで徒歩8分♪
・人気の南西角地!陽当たり良好です♪
・太陽光発電設置
・お車2台駐車可能!
・耐震等級2、断熱等性能等級4
月々の
支払例
支払例
万円
年
%
円
※紀陽銀行/借入金3,980万円、返済期間35年、金利0.395%(変動)の場合
※審査により金利は変わる可能性があります。
物件概要
- 交通
-
関西線 八尾駅 まで 徒歩8分
- 接道状況
-
南側 公道6.7m 間口約8.7m
西側 公道5.2m 間口約7.6m - 土地面積
- 67.37㎡ (20.37坪)
- 建物面積
- 102.05㎡ (30.87坪)
- 築年数
- 2025年 (令和7) 12月
- 建ぺい率
- 60%
- 容積率
- 20%
- 土地権利
- 所有権
- 構造および階数
- 木造 地上3階建
- 小学校区
- 永畑 (290m)
- 中学校区
- 龍華 (1600m)
- 私道負担
- 地目
- 宅地
- 現況
- 空家
- 引渡時期
- 即時
- 駐車場
- 有
- 上水道
- 下水道
- ガス
- 都市ガス
- 都市計画
- 市街化区域
- 用途地域
- 1種住居
- 建築確認番号
- 第技建認2025-00370号
- 設備・条件
- システムキッチン、カウンターキッチン、食器洗浄乾燥機、洗浄便座、追い焚き、床暖房、複層ガラス、モニタ付インターホン、駐車場2台分、トイレ2箇所、太陽光パネル、エネファーム、カップボード
- 備考
- 取引態様
- 仲介



