収益物件/店舗付住宅 羽曳野市はびきの7丁目
所在地
羽曳野市はびきの7丁目
680万円
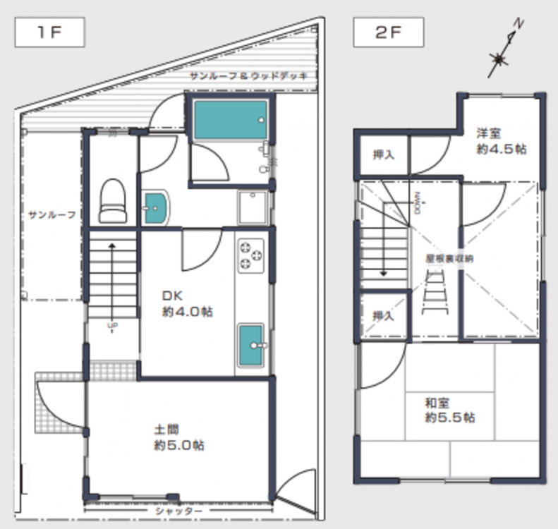
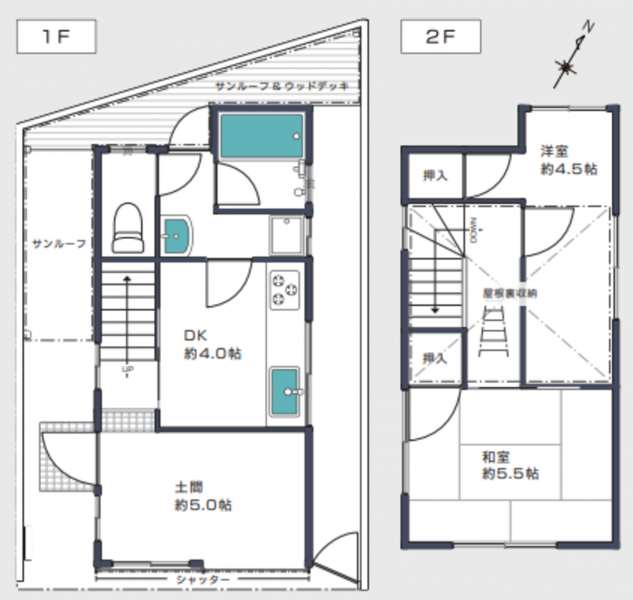
2SDK
シャッター付き土間があり小規模店舗・作業場としても利用可能♪
自宅兼店舗対応の多用途住宅!!
前面道路幅約6m
大容量屋根裏収納あり♪
月々の
支払例
支払例
万円
年
%
円
※紀陽銀行/借入金680万円、返済期間35年、金利0.395%(変動)の場合
※審査により金利は変わる可能性があります。
物件概要
- 交通
-
近鉄南大阪線 高鷲駅 まで 徒歩31分
- 土地面積
- 公簿 54.00㎡ (16.33坪)
- 建物面積
- 42.34㎡ (12.80坪)
- 所在階/階数
- 築年数
-
1995年
(平成7)
12月
築30年 - 建ぺい率
- 50%
- 容積率
- 100%
- 土地権利
- 所有権
- 構造および階数
- 木造 地上2階建
- 総戸数
- 小学校区
- 埴生南 (650m)
- 中学校区
- 河原城 (450m)
- 私道負担
- なし
- 地目
- 宅地
- 現況
- 空家
- 引渡時期
- 相談
- 駐車場
- 上水道
- 下水道
- ガス
- 都市計画
- 市街化区域
- 用途地域
- 1種低層
- 設備・条件
- 追い焚き
- 備考
- 取引態様
- 仲介



