中古一戸建て 柏原市片山町
所在地
柏原市片山町
3,880万円
40.07坪
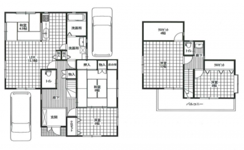
5LDK
お部屋たっぷり5LDK
お車2台駐車可能
敷地面積約45坪!
月々の
支払例
支払例
万円
年
%
円
※紀陽銀行/借入金3,880万円、返済期間35年、金利0.395%(変動)の場合
※審査により金利は変わる可能性があります。
物件概要
- 交通
-
近鉄大阪線 河内国分駅 まで 徒歩13分
近鉄南大阪線 道明寺駅 まで 徒歩13分
- 接道状況
-
南側 公道4.7m 間口約11.4m
北側 公道4.7m 間口約11.1m - 土地面積
- 公簿 150.03㎡ (45.38坪)
- 建物面積
- 132.49㎡ (40.07坪)
- 築年数
-
2008年
(平成20)
8月
築17年 - 建ぺい率
- 60%
- 容積率
- 188%
- 土地権利
- 所有権
- 構造および階数
- 木造 地上2階建
- 小学校区
- 玉手 (750m)
- 中学校区
- 玉手 (600m)
- 私道負担
- なし
- 地目
- 宅地
- 現況
- 空家
- 引渡時期
- 即時
- 駐車場
- 有
- 上水道
- 公共
- 下水道
- ガス
- 都市ガス
- 都市計画
- 調整区域
- 用途地域
- 準工業
- 設備・条件
- 追い焚き、駐車場2台分、トイレ2箇所
- 備考
- 取引態様
- 仲介



