中古一戸建て 八尾市黒谷5丁目
所在地
八尾市黒谷5丁目
4,480万円
43.25坪
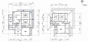
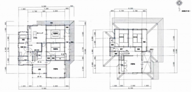
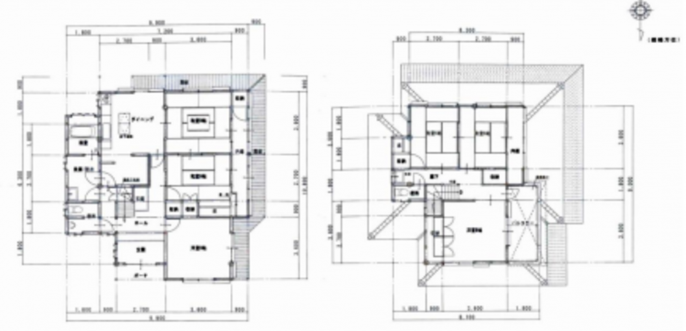
6LDK
お部屋たっぷり6LDK!
敷地面積約126坪!
シャッター付き駐車場2台分
月々の
支払例
支払例
万円
年
%
円
※紀陽銀行/借入金4,480万円、返済期間35年、金利0.395%(変動)の場合
※審査により金利は変わる可能性があります。
物件概要
- 交通
- 土地面積
- 416.66㎡ (126.03坪)
- 建物面積
- 143.00㎡ (43.25坪)
- 築年数
-
1987年
(昭和62)
10月
築38年 - 建ぺい率
- 60%
- 容積率
- 200%
- 土地権利
- 所有権
- 構造および階数
- 木造 地上2階建
- 小学校区
- 南高安
- 中学校区
- 南高安
- 私道負担
- 地目
- 宅地
- 現況
- 空家
- 引渡時期
- 即時
- 駐車場
- 上水道
- 下水道
- ガス
- 都市計画
- 市街化区域
- 用途地域
- 1種住居
- 設備・条件
- 駐車場2台分
- 備考
- セコム使用料 月額約3,000円
- 取引態様
- 仲介



