中古一戸建て 羽曳野市羽曳が丘7丁目
所在地
羽曳野市羽曳が丘7丁目
5,480万円
61.24坪
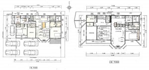
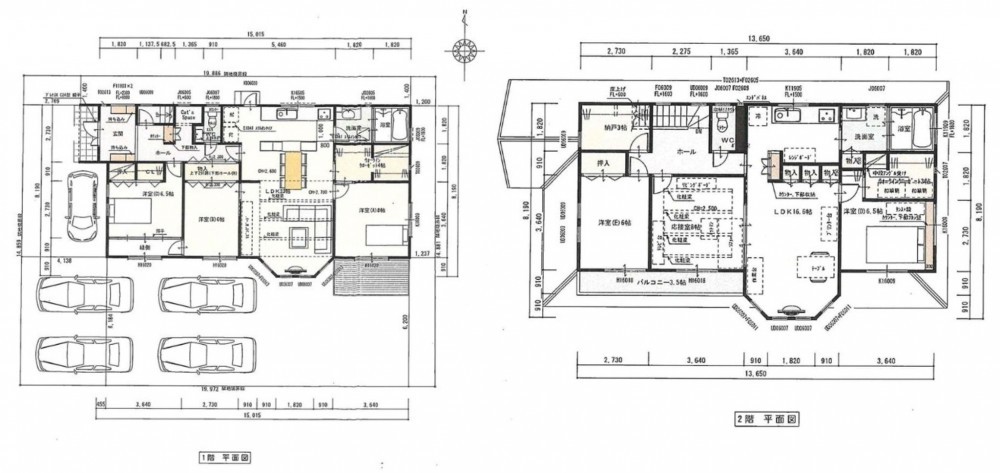
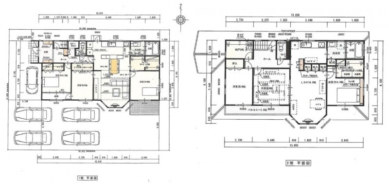
7SLDK
☆3SLDK+3SSLDK
☆二世帯住宅向き
☆お車4~5台駐車可能♪
☆土地面積約90坪!
月々の
支払例
支払例
万円
年
%
円
※紀陽銀行/借入金5,480万円、返済期間35年、金利0.395%(変動)の場合
※審査により金利は変わる可能性があります。
物件概要
- 交通
-
近鉄南大阪線 藤井寺駅 バス18分乗車 バス停羽曳が丘7丁目 まで 徒歩1分
- 接道状況
- 西側 公道11.3m 間口約14.9m
- 土地面積
- 公簿 297.54㎡ (90.00坪)
- 建物面積
- 202.46㎡ (61.24坪)
- 築年数
-
2015年
(平成27)
12月
築10年 - 建ぺい率
- 50%
- 容積率
- 100%
- 土地権利
- 所有権
- 構造および階数
- 木造 地上2階建
- 小学校区
- 羽曳が丘 (400m)
- 中学校区
- 峰塚 (1700m)
- 私道負担
- 地目
- 宅地
- 現況
- 居住中
- 引渡時期
- 相談
- 駐車場
- 有
- 上水道
- 公共
- 下水道
- 公共下水
- ガス
- 都市ガス
- 都市計画
- 市街化区域
- 用途地域
- 1種低層
- 設備・条件
- ウォークインクローゼット、駐車場2台分、駐車場3台分、トイレ2箇所
- 備考
- 取引態様
- 仲介



