マンション ハイマート古市プレジャーコート
所在地
羽曳野市誉田2丁目
1,150万円
66.34m²
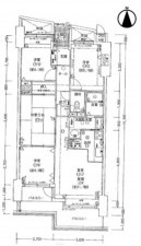
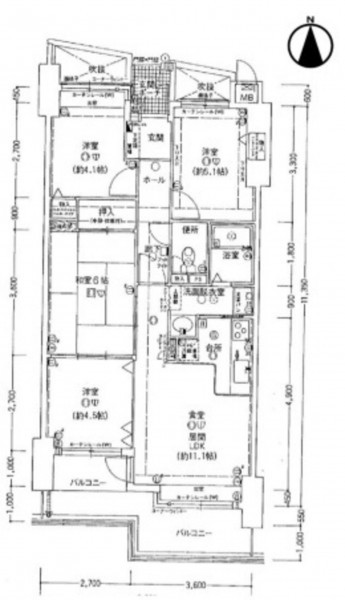
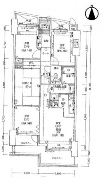
4LDK
☆オーナーチェンジ物件
☆賃料75,000円/月にて賃貸中
☆利回り約7.8%
月々の
支払例
支払例
万円
年
%
円
※紀陽銀行/借入金1,150万円、返済期間35年、金利0.395%(変動)の場合
※審査により金利は変わる可能性があります。
物件概要
- 交通
-
近鉄南大阪線 古市駅 まで 徒歩10分
- 専有面積
- 壁芯 66.34㎡
- バルコニー
-
12.52㎡
(南側)
- 所在階/階数
- 2階/9階
- 築年数
-
1989年
(平成元)
7月
築36年 - 建ぺい率
- 容積率
- 土地権利
- 所有権
- 構造および階数
- RC(鉄筋コンクリート) 造 地上9階建
- 総戸数
- 60戸
- 小学校区
- 古市
- 中学校区
- 誉田
- 地目
- 現況
- 居住中
- 引渡時期
- 即時
- 駐車場
- 空無
- 駐車場月額
- 5,000〜7,000円/月
- 管理形態
- 全部委託
- 管理会社
- 株式会社ライフポート西洋
- 管理費
- 9,600円
- 修繕積立費
- 10,620円
- 上水道
- 公共
- 下水道
- 公共下水
- ガス
- 都市ガス
- 都市計画
- 用途地域
- 1種住居
- 設備・条件
- エレベーター
- 備考
- 取引態様
- 仲介



