新築一戸建て 八尾市新家町2丁目
所在地
八尾市新家町2丁目
2,850万円
31.60坪
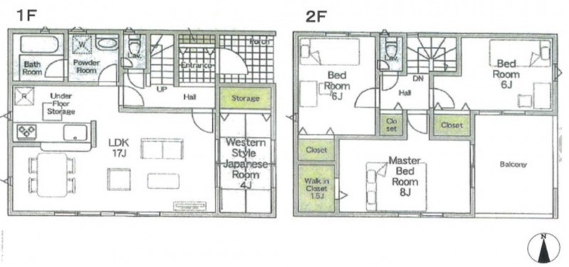
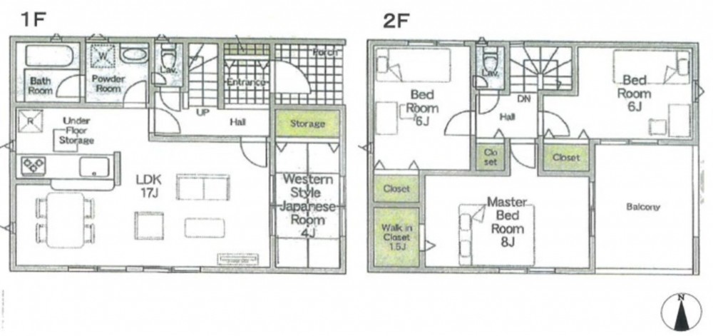
4LDK
防犯カメラがあって安心です♪
ゆとりの4LDK☆
各居室収納スペースございます♪
月々の
支払例
支払例
万円
年
%
円
※紀陽銀行/借入金2,850万円、返済期間35年、金利0.395%(変動)の場合
※審査により金利は変わる可能性があります。
物件概要
- 交通
-
近鉄大阪線 久宝寺口駅 まで 徒歩22分
- 接道状況
- 東側4.3m 間口約9.9m
- 土地面積
- 公簿 98.07㎡ (29.66坪)
- 建物面積
- 104.48㎡ (31.60坪)
- 築年数
- 2025年 (令和7) 9月
- 建ぺい率
- 60%
- 容積率
- 200%
- 土地権利
- 所有権
- 構造および階数
- 木造 地上2階建
- 小学校区
- 桂 (1600m)
- 中学校区
- 桂 (1500m)
- 私道負担
- 地目
- 宅地
- 現況
- 空家
- 引渡時期
- 相談
- 駐車場
- 有
- 上水道
- 公共
- 下水道
- 公共下水
- ガス
- 都市ガス
- 都市計画
- 市街化区域
- 用途地域
- 準工業
- 建築確認番号
- 第R07SHC108202号
- 設備・条件
- システムキッチン、カウンターキッチン、シャンプードレッサー、洗浄便座、浴室乾燥機、複層ガラス、ウォークインクローゼット、モニタ付インターホン、トイレ2箇所
- 備考
- 準防火
- 取引態様
- 仲介



