マンション 八尾山本レックスマンション
所在地
八尾市上之島町北4丁目
900万円
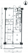
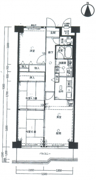
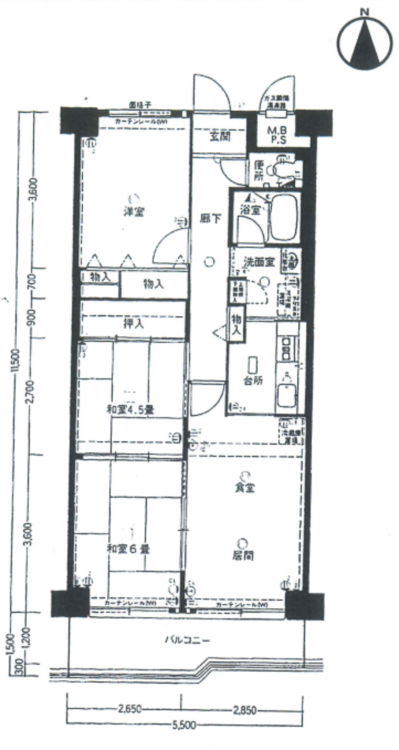
63.25m²
3LDK
☆南向きバルコニーで日当たり良好です♪
☆リフォーム歴ございます☆
☆小・中学校徒歩5分圏内でお子様の通学も安心です♪
★2025年7月
浴槽入替済
トイレ入替済
洗面台入替
・自治会費300円/月
月々の
支払例
支払例
万円
年
%
円
※紀陽銀行/借入金900万円、返済期間35年、金利0.395%(変動)の場合
※審査により金利は変わる可能性があります。
物件概要
- 交通
-
近鉄大阪線 河内山本駅 まで 徒歩20分
近鉄大阪線 河内山本駅 バス6分乗車 バス停上之島町 まで 徒歩2分
- 専有面積
- 壁芯 63.25㎡
- バルコニー
-
7.54㎡
(南側)
- 所在階/階数
- 4階/9階
- 築年数
-
1984年
(昭和59)
1月
築42年 - 建ぺい率
- 容積率
- 土地権利
- 所有権
- 構造および階数
- SRC(鉄骨鉄筋コンクリート) 造 地上9階建
- 総戸数
- 267戸
- 小学校区
- 上之島 (350m)
- 中学校区
- 上之島 (230m)
- 地目
- 現況
- 居住中
- 引渡時期
- 相談
- 駐車場
- 空無
- 駐車場月額
- 8,000円/月
- 管理形態
- 全部委託
- 管理会社
- 日本ハウズィング
- 管理費
- 6,300円
- 修繕積立費
- 7,040円
- 上水道
- 公共
- 下水道
- 公共下水
- ガス
- 都市ガス
- 都市計画
- 用途地域
- 工業
- 設備・条件
- 備考
-
準防火地域
【その他の費用】自治会費:300円/月(全住戸請求) ※大規模修繕実施予定時期:2026~2027年予定(2026年4月7日現在 - 取引態様
- 仲介



